27.09.23

Planning Approval for the No.48 project.

project
No.48

stage
planning


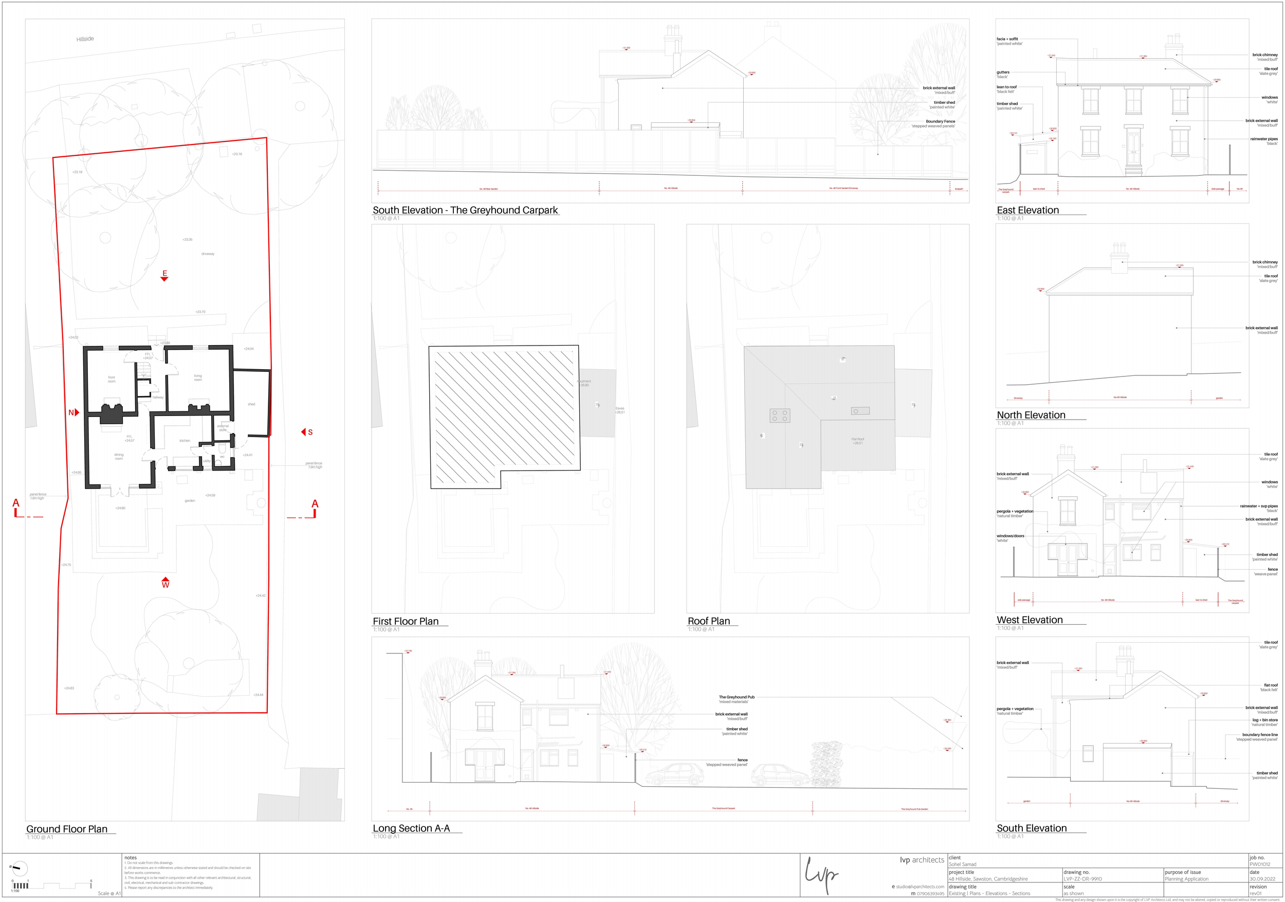
We’re delighted to share that planning approval has been granted for No. 48 in Sawston.

This project includes a modest single-storey side extension coupled with substantial internal refurbishments. The changes will significantly transform the ground floor layout, unlocking the full potential of this lovely detached home. It’s a fantastic way to wrap up the year.

For more details, visit the 'projects' page on our website to read about No. 48.

Existing

Proposed

Previous
Previous

29.09.23

Next
Next

21.09.23