24.09.25

Planning Approval for No.6

project
No.6

date
24.09.2025


Planning approval secured at No.06, York Drive, Upper Cambourne.

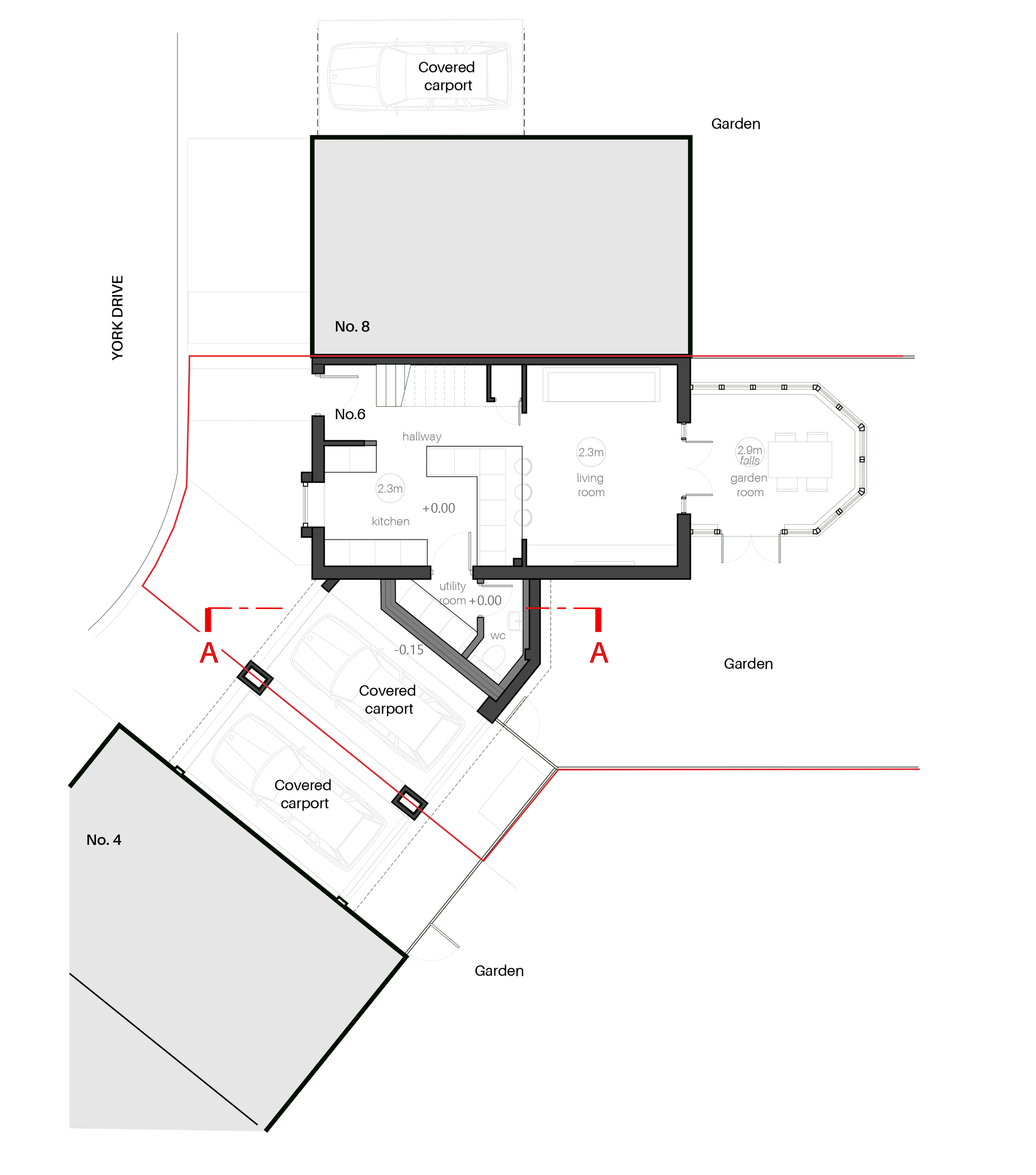
We are pleased to confirm that planning permission has been granted for internal alterations and a modest infill extension at No.6 York Drive, a semi-detached family home in Upper Cambourne, Cambridge.

The brief focused on improving the day-to-day functionality of the ground floor for a growing family. While the existing house was typical of its type, the compartmentalised layout restricted natural flow between spaces and limited how the home could be used for contemporary family living.

Our proposal carefully works within the constraints of the existing building. Rather than extending outward, the design makes use of the covered side carport, introducing additional accommodation without increasing the overall footprint or reducing off-street parking provision.

The approved scheme includes a reconfiguration of the ground floor to form a generous open-plan kitchen, dining and living space, centred around a new kitchen island. A new utility room and WC will be created within a partially infilled section of the existing carport, alongside bespoke joinery and internal refurbishment works.

Externally, the infill extension remains visually subordinate and integrated with the existing house, ensuring the overall character of the street scene is retained.

The application was approved under a straightforward planning process, reflecting the limited external impact of the proposals.

With planning now secured, the project moves forward into technical design and construction. We look forward to sharing further updates as works progress on site.

With planning now secured, the project moves forward into technical design and construction. We look forward to sharing further updates as works progress on site.

Previous
Previous

24.11.25

Next
Next

05.12.24