No.36

Design & Planning

lvp architects were appointed to prepare a listed building planning application for The Water Mill, a Grade II listed building located on Mill Lane in Linton, Cambridgeshire.

The commission focused on the external appearance of the building and the careful integration of minor alterations required to support internal refurbishment works being developed separately by an interior designer. The project forms part of an ongoing and considered approach to the building’s adaptation, following earlier phases of consented work.

Context

The Water Mill is a historically significant building with origins dating back to the medieval period, later rebuilt and expanded during the eighteenth and nineteenth centuries. The structure remains a prominent landmark within the Granta Valley and the Linton Conservation Area, with a distinctive form defined by its mansard roof, weatherboarded elevations, and retained industrial features.

Given the building’s listed status and sensitive setting, the proposals were developed with a clear understanding of its historic fabric and visual prominence, particularly in relation to its public-facing elevations and corner position on Mill Lane.

Design Approach

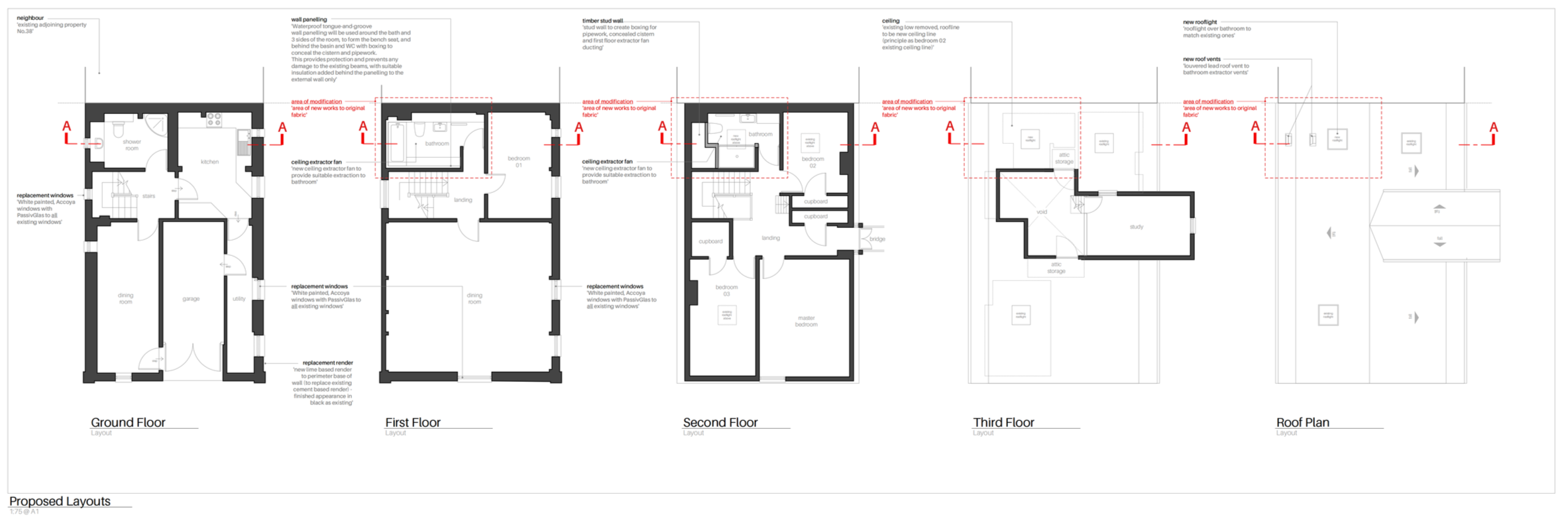
The design approach was guided by a principle of minimal intervention. The focus was placed on understanding how required external changes could be accommodated without altering the building’s established character or appearance.

All proposals were developed to be discreet, reversible, and carefully positioned, ensuring that the historic fabric and key views of the building remain unaffected. Particular care was taken to locate new elements away from prominent public elevations.

Proposals

The proposals include minor external roof alterations to support improved daylight and ventilation to internal spaces, along with the replacement of selected windows on a like-for-like basis. New roof elements, including ventilation outlets and a rooflight, were carefully positioned on a less prominent roof slope to minimise visual impact.

At ground level, the replacement of an existing cement-based render plinth with a lime-based alternative forms part of a wider conservation-led strategy to improve the building’s breathability and long-term performance, while retaining its established appearance.

Planning & Materials

Listed building consent was sought for the proposed external alterations, window replacements, and material changes. The application was developed in response to national and local heritage policy, alongside Historic England guidance on managing change to listed buildings.

Materials were selected to align closely with the existing historic fabric. Accoya timber windows with heritage-sensitive double glazing were specified to replicate the original profiles and detailing, while lead was used for new roof ventilation elements to ensure compatibility with the existing slate mansard roof. The introduction of lime-based render supports the conservation of the building fabric and long-term durability.

Next Steps

The listed building planning stage for this phase of work is now complete. The project will continue to progress in carefully considered stages, with further information shared as additional phases are developed.

Previous
Previous

No.22

Next
Next

No.10