No.6

Design, Planning & Construction

lvp architects were appointed to design internal alterations and a small infill extension to a semi-detached family home at No.6.

The brief was driven by the needs of a growing family, with a focus on improving how the ground floor is used on a day-to-day basis. The project has progressed through design and planning and is now preparing to start on site, with construction due to commence in mid-February.

Context

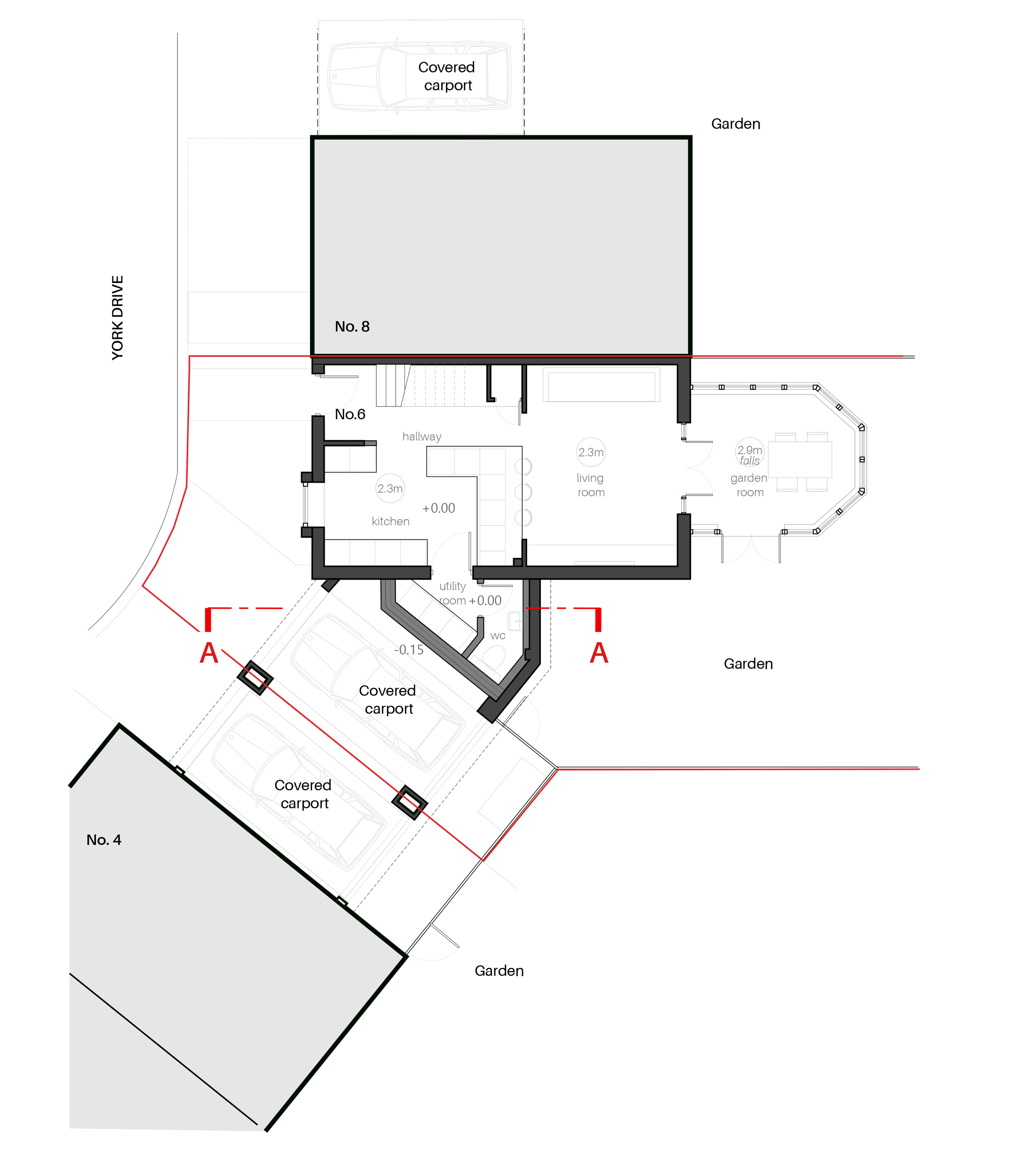
The existing house is a semi-detached dwelling with a compartmentalised ground floor layout, consisting of a small kitchen, wc and living space, with an adjoining covered carport to the side. Functional, the internal arrangement limited natural flow between spaces and did not support young contemporary family living.

The carport provided an opportunity to introduce additional accommodation without extending beyond the existing building footprint or reducing off-street parking provision.

Design Approach

The design approach focused on working within the constraints of the existing house, using targeted interventions rather than large extensions. Priority was given to creating a clear, open, and flexible ground floor arrangement that could accommodate family life, informal dining, and everyday use.

Care was taken to ensure that the infill works within the carport remained visually subordinate and integrated with the existing building, retaining the overall character of the house and its relationship to the street.

Proposals

The proposals include internal reconfiguration of the ground floor to create a generous open-plan kitchen, dining, and living space, centred around a new kitchen with island. A new utility room and WC are formed within a partially infilled section of the existing covered carport, without reducing the number of parking spaces.

Additional improvements include bespoke under-stairs storage, new joinery, and a general refurbishment of internal finishes to support the updated layout. The infill extension is modest in scale and sits entirely within the existing footprint of the carport.


Planning & Delivery

The works were approved under a straightforward planning application, reflecting the limited external impact of the proposals. No Design and Access Statement was required.

lvp architects are continuing their involvement through the technical design, building control, and construction stages, acting as Contract Administrator during the works.


Next Steps

The project is now moving into construction, with works due to start on site in mid-February. Further updates will be shared as the build progresses.

Previous
Previous

No.00

Next
Next

No.36